
MIL-DTL-62545E
NOTES:
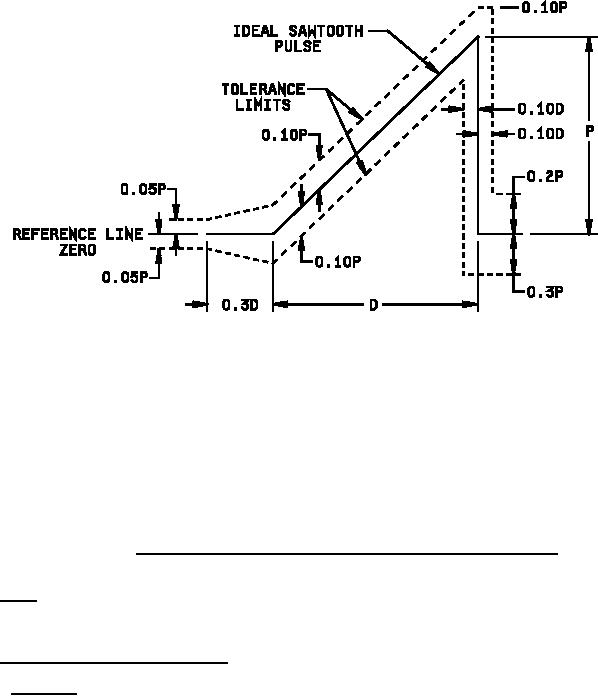
1.
The oscillogram shall include a time about 3D long with a pulse located approximately in the center.
The peak acceleration magnitude of the sawtooth pulse is P and it's duration is D. The measured
acceleration pulse shall be contained between the broken line boundaries and the measured velocity
change (which may be obtained by integration of the acceleration pulse) shall be within the limits of
Vi ± 0.1 Vi, where Vi is the velocity-change associated with the ideal pulse which equals 0.5 PD. The
integration to determine velocity change shall extend from 0.4D before the pulse to 0.1D after the
pulse.
FIGURE 6. Terminal-peak sawtooth shock pulse configuration and tolerance limits.
3.6 Finish. All component exterior surfaces of the MSEC, except mounting surfaces and electrical connectors,
shall be painted in conformance with requirements of Drawing 12370459. The finish shall be uniform in coverage and
free from runs or sags (see 4.6.2).
3.7 Identification nameplate and markings.
3.7.1 Nameplate. The MSEC shall have a nameplate attached in a conspicuous location. The nameplate shall
have the following minimum information (see 4.6.2):
a.
Component name.
b.
National Stock Number (NSN).
c.
Serial number.
d.
Manufacturer's Name or Identification Code.
18
For Parts Inquires call Parts Hangar, Inc (727) 493-0744
© Copyright 2015 Integrated Publishing, Inc.
A Service Disabled Veteran Owned Small Business